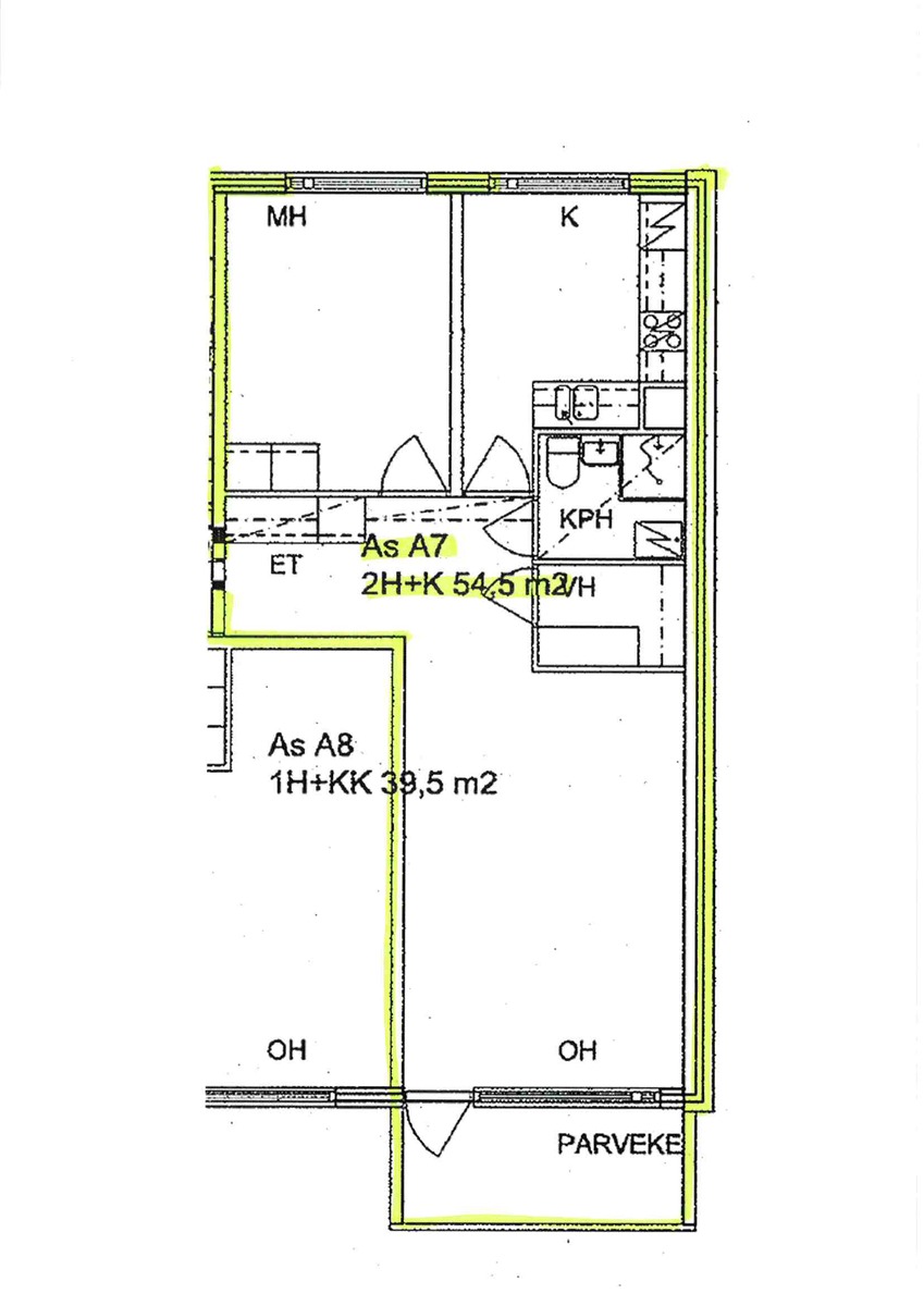
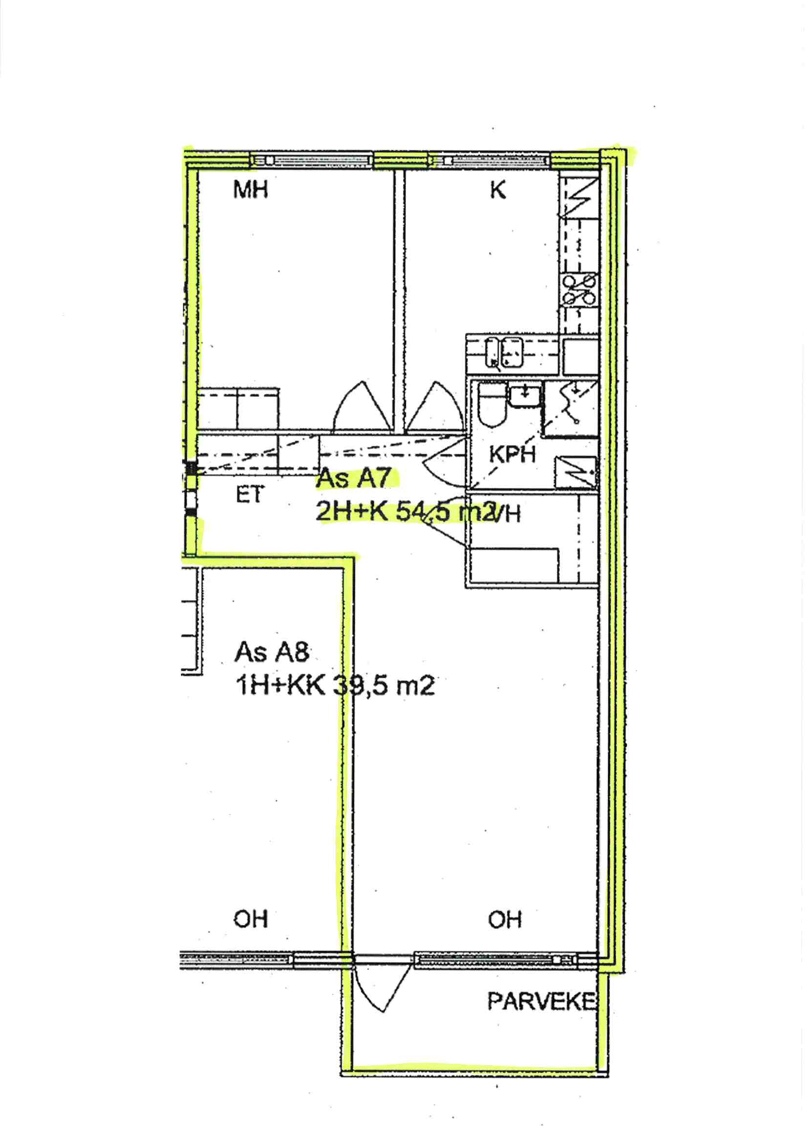
Kerrostalo, Välimäentie 3, Savonlinna, k+oh+mh+kph/wc+vh+et, 54,50 m², 31 000 €
Siistikuntoinen, ylimmän eli 3. kerroksen läpitalon huoneisto lähellä Mertalan ja Nojanmaan palveluita! Päätyasunnon huonejärjestyksenä on olohuone, keittiö, makuuhuone, kph/wc, vaatehuone sekä eteinen. Lasitettu parveke, ei hissiä. Taloyhtiössä tehty mittavia huoltotoimenpiteitä ja remontteja, mm. LVI-saneeraus tehty v. 2012. Hyvät yhteiset tilat mm. uusittu saunaosasto. Huoneisto myydään vuokrattuna. Esittelemme kohdetta sopimuksen mukaan – varaa esittelyaikasi! 
Kohdetta myy
Punkaharjun Metsäpalvelu Oy LKVY-tunnus: 2044814-4Kauppatie 24
58500 Punkaharjuinfo@metsat.fi+358 50 464 6504
58500 Punkaharjuinfo@metsat.fi+358 50 464 6504
Esittely
Kohteen seuraavaa esittelyajankohtaa ei ole tiedossa
Perustiedot
37605464
37605464
Välimäentie 3
57210 Savonlinna
57210 Savonlinna
Kerrostalo
Ei
Omistusasunto
k+oh+mh+kph/wc+vh+et
2
54,50 m²
54,50 m²
Yhtiöjärjestyksen mukainen, Isännöitsijäntodistuksen mukainen
Ei tarkistusmitattu
Ei tarkistusmitattu
3/3
1975
1975
Hinta ja kustannukset
31 000 €
27 429,14 €
3 570,86 €
568,81 € / m²
Laskettu velattomasta myyntihinnasta.
Laskettu velattomasta myyntihinnasta.
315,90 € / kk
Hoitovastike 224,10 € / kk
Rahoitusvastike 91,80 € / kk
Hoitovastike 224,10 € / kk
Rahoitusvastike 91,80 € / kk
20 € / kk / hlö
Kylmä vesi 6,53 €/m3, lämmin vesi 11,90 €/m3
Kylmä vesi 6,53 €/m3, lämmin vesi 11,90 €/m3
Kylmä vesi 6,53 €/m3, lämmin vesi 11,90 €/m3
Kylmä vesi 6,53 €/m3, lämmin vesi 11,90 €/m3
Autopaikkamaksu: 8 €/kk
Autotallin sähkömaksu 17,50 €/kpl, saunamaksu 10 €/kk, tiistaisauna 1 €/kpl, pesutupamaksu 2 €/kpl
Lisätiedot
Ei
Ulostyönnetty parveke, lasitettu
Ilmansuunta: etelä, kaakko
Ilmansuunta: etelä, kaakko
Ei
Tyydyttävä
Siistikuntoinen huoneisto.
Asunnossa on tehty vuosien varrella pintaremonttia. Kylpyhuone remontoitu n. 20 vuotta sitten.
Kyllä
Raportin pvm 6.4.2011, laatija: Insinööritoimisto J. Päivinen.
Raportin pvm 6.4.2011, laatija: Insinööritoimisto J. Päivinen.
Kaukolämpö
Lämmönjakotapa: vesikiertoinen patterilämmitys
Kylpyhuoneiden lämmityssähkö menee taloyhtiön mittauksesta. Huoneiston kylpyhuoneen lämmönjakotapa sähköpatteri.
Lämmönjakotapa: vesikiertoinen patterilämmitys
Kylpyhuoneiden lämmityssähkö menee taloyhtiön mittauksesta. Huoneiston kylpyhuoneen lämmönjakotapa sähköpatteri.
Koneellinen tulo, koneellinen poisto
Kaapeli-TV
Jokaiseen huoneistoon tulee 55/15 laajakaista BLC:ltä, laajakaistan kustannukset ovat mukana hoitovastikkeessa.
Asunnon tilat ja materiaalit
Pääasiallinen rakennusmateriaali: Betoni
Varusteet: jääkaappipakastin, sähköliesi, liesituuletin
Lattian pintamateriaali: parketti
Lattian pintamateriaali: parketti
Seinien pintamateriaali: tapetti
Lattian pintamateriaali: parketti
Lattian pintamateriaali: parketti
Seinien pintamateriaali: tapetti
Lattian pintamateriaali: muovi
Makuuhuoneiden määrä: 1
Lattian pintamateriaali: muovi
Makuuhuoneiden määrä: 1
Varusteet: pesukoneliitäntä, suihkukaappi, peili
Seinien pintamateriaali: kaakeli
Lattian pintamateriaali: laatta
Seinien pintamateriaali: kaakeli
Lattian pintamateriaali: laatta
Kylmäkellari, kellari tai kellarikomero
Vaatehuone: Tilava vaatehuone
Katto: Tasakatto
Katon pintamateriaali: Huopakate
Katon pintamateriaali: Huopakate
Taloyhtiö
Asunto Oy Mäntymertala
Yhtiöjärjestyksen mukaan yhtiön välittömään hallintaan jäävät kaksi urheiluvälinevarastoa, rengasvarasto, väestönsuoja, pyykinpesuhuone, mankelihuone, kuivaushuone sekä sauna, pesu- ja pukuhuoneet. Lisäksi isännöitsijäntodistuksen mukaan kylmäsäilytystilat ja kellarikomerot.
Taloyhtiössä sauna
27
1993 julkisivun maalaus ja pellitys (kadun puoli) 1993
1994 pihapuolen maalaus (sisäpihan puoli)
1998 vesikatteen uusinta
1998 julkisivun parvekettomien ikkunoiden uusinta
2003 lukoston uusinta
2006 kaukolämpöön liittyminen, KL-laitteisto ja patteriventtiilien uusinta
2008 autotallien ovi- ja seinäpanelien uusiminen
2009 öljysäiliöntilan muuttaminen varastoksi
2010 LVI-suunnittelu
– piirustukset digitaaliseen muotoon
2012 LVI-saneeraus
– käyttövesiputkien uusiminen ja vesimittarien asentaminen (huoneistokohtainen veden mittaus)
– kylpyhuoneiden lämmityksen uusiminen sähköpattereilla (taloyhtiön mittauksessa)
2012 rappukäytävien maalaus
2013 lisäautopaikkojen tekeminen ja autolämmityskoteloiden uusiminen
2014 sokkelin ja sen vierustan kunnostus
2014 sisäpihan valaistuksen parantaminen, turvanousukiskon asennus
2015 vihertyöt
– pihalla olevan rinteen kasvien uudelleen istutus ja siistiminen
2016 saunan ja pesutilojen saneeraus
2018 julkisivujen maalaus ja puisteluparvekkeiden korjaus
– julkisivujen betoniosat maalattu, poislukien sokkeli
– puisteluparvekkeet kunnostettu ja kaiteet uusittu
2019 íkkunoiden ja parvekeovien uusiminen
2019 ilmanvaihdon puhdistus ja säätö
2020 pääsisäänkäyntiovien uusiminen
2022 kattosaneeraus
– vesikate uusittu pohjasta lähtien, kattokaivoihin asennettu saneerauskaivot
– katon reunapellitys uusittu
2023 kylmiön kompressorin uusiminen
1994 pihapuolen maalaus (sisäpihan puoli)
1998 vesikatteen uusinta
1998 julkisivun parvekettomien ikkunoiden uusinta
2003 lukoston uusinta
2006 kaukolämpöön liittyminen, KL-laitteisto ja patteriventtiilien uusinta
2008 autotallien ovi- ja seinäpanelien uusiminen
2009 öljysäiliöntilan muuttaminen varastoksi
2010 LVI-suunnittelu
– piirustukset digitaaliseen muotoon
2012 LVI-saneeraus
– käyttövesiputkien uusiminen ja vesimittarien asentaminen (huoneistokohtainen veden mittaus)
– kylpyhuoneiden lämmityksen uusiminen sähköpattereilla (taloyhtiön mittauksessa)
2012 rappukäytävien maalaus
2013 lisäautopaikkojen tekeminen ja autolämmityskoteloiden uusiminen
2014 sokkelin ja sen vierustan kunnostus
2014 sisäpihan valaistuksen parantaminen, turvanousukiskon asennus
2015 vihertyöt
– pihalla olevan rinteen kasvien uudelleen istutus ja siistiminen
2016 saunan ja pesutilojen saneeraus
2018 julkisivujen maalaus ja puisteluparvekkeiden korjaus
– julkisivujen betoniosat maalattu, poislukien sokkeli
– puisteluparvekkeet kunnostettu ja kaiteet uusittu
2019 íkkunoiden ja parvekeovien uusiminen
2019 ilmanvaihdon puhdistus ja säätö
2020 pääsisäänkäyntiovien uusiminen
2022 kattosaneeraus
– vesikate uusittu pohjasta lähtien, kattokaivoihin asennettu saneerauskaivot
– katon reunapellitys uusittu
2023 kylmiön kompressorin uusiminen
Tuomas Laamanen, puh. 044 5966118
tuomas.laamanen@slnisannointikeskus.fi
Savonlinnan Isännöintikeskus Oy
57310 Savonlinna
tuomas.laamanen@slnisannointikeskus.fi
Savonlinnan Isännöintikeskus Oy
57310 Savonlinna
Huoltoyhtiö
T:mi Jouni Eronen
T:mi Jouni Eronen
D2018
Energiatodistus voimassa 5.3.2035 saakka.
2 690 m²
Vuokratontti
2419 €/v
2419 €/v
2034
Savonlinnan kaupunki
Ei rantaa
Asemakaava
Savonlinnan kaupunki, kaavoituspalvelut
Savonlinnan kaupunki, kaavoituspalvelut
Taloyhtiö kustantaa kylpyhuoneremontin yhteydessä vesieristyksen. Tarpeen mukaan parvekeseinien huoltomaalaukset on sovittu toteutettavaksi talkootyönä niin, että asukkaat maalaavat itse ja taloyhtiö hankkii tarvikkeet. Mikäli huoneistolla on rahoitusvastike ja lainaosuus maksetaan pois, veloitetaan osakkaalta siitä aiheutuvat kulut kulloinkin voimassa olevan pankin hinnaston mukaisesti. Asbestikartoitus tehty. Kylpyhuoneiden lämmityssähkö menee taloyhtiön mittauksesta. Hallituksella valtuudet kerätä enintään 2 ylimääräistä vastiketta tarpeen vaatiessa.
Muut lisätiedot
Autotallit: 5
Ulkoautopaikat sähköpistokkeella: 22
Asunnon käytössä olevat autopaikat: ulkoautopaikka sähköpistokkeella
Ulkoautopaikat sähköpistokkeella: 22
Asunnon käytössä olevat autopaikat: ulkoautopaikka sähköpistokkeella
Prisman kauppakeskukselle 1 km, lisäksi Nojanmaan ja Mertalan muut palvelut lähellä.























