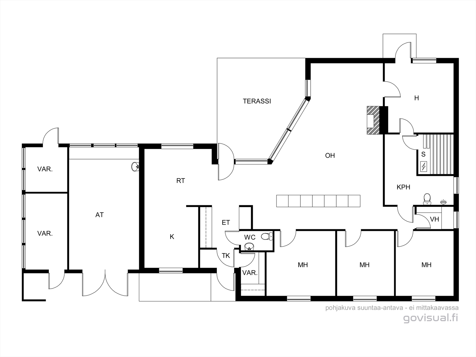
Omakotitalo, Satumäentie 14, Parikkala, Satumäki, k+oh+4mh+kph+s+wc+et+tk+vh+3var+at+ter, 138,50 m², 35 000 €
Vuonna 1981 valmistunut omakotitalo, jossa neljä makuuhuonetta, keittiö, olohuone, kylpyhuone, sauna, wc, vaatehuone ja eteistilat. Eteistiloissa erillinen varastohuone. Kodissa on poistoilmalämpöpumppulämmitys, lisäksi olohuoneessa takka ja ilmalämpöpumppu, kosteissa tiloissa sähköinen lattialämmitys. Takapiha on vehreä ja suojaisa, kookkaiden puiden suojassa sijaitsee sähköistetty pieni puutarhavaja. Tontilta löytyy tilaa kasvimaalle ja istutuksille. Talon yhteydessä kylmä autotalli ja varastotila. 
Kohdetta myy
Punkaharjun Metsäpalvelu Oy LKVY-tunnus: 2044814-4Kauppatie 24
58500 Punkaharjuinfo@metsat.fi+358 50 464 6504
58500 Punkaharjuinfo@metsat.fi+358 50 464 6504
Esittely
Kohteen seuraavaa esittelyajankohtaa ei ole tiedossa
Perustiedot
64565645
64565645
Parikkala, Satumäki
Satumäentie 14
59100 Parikkala
Satumäentie 14
59100 Parikkala
Omakotitalo
Ei
Omistusasunto
k+oh+4mh+kph+s+wc+et+tk+vh+3var+at+ter
6 tai enemmän
138,50 m²
57,50 m²
196 m²
Pinta-alaa ei ole tarkistusmitattu, tiedot perustuvat pohjapiirustukseen (13.12.1981). Rakennusrekisterin tietojen mukaan asuintilojen pinta-ala on 132 m², kokonaisala 151 m².
1981
1981
Heti
Hinta ja kustannukset
35 000 €
35 000 €
252,71 € / m²
Laskettu velattomasta myyntihinnasta.
Laskettu velattomasta myyntihinnasta.
338,39 € / v
Sähkönkulutus 12 400 kWh/vuosi.
Lisätiedot
Asunnossa on sauna
Varusteet: sähkökiuas
Seinien pintamateriaali: paneeli
Lattian pintamateriaali: laatta
Varusteet: sähkökiuas
Seinien pintamateriaali: paneeli
Lattian pintamateriaali: laatta
Kyllä
Takka
Ei luokiteltu
Rakennuksen perustuksen vesieristys ja salaojitus uusittu ja pinnoitettu 2000-luvun alussa, lisäksi ulkomaalauksia tehty. Pesuhuone peruskorjattu, viemäri ja vesijohdot tilassa uusittu v. 2002. Poistoilmalämpöpumppu uusittu v. 2009-2010 aikana. V. 2020 lisätty puhallusvillaa yläpohjaan ja uusittu peltikate.
Ei
H (Energiatodistus laadittu kevennettyä menettelyä käyttäen)
Poistoilmalämpöpumppu
Lämmönjakotapa: ilmalämpöpumppu, sähköinen lattialämmitys, muu
Poistoilmalämpöpumpun tekniikka uusittu v. 2009-2010 aikana, ilmalämpöpumppu uusittu v. 2017. Pesuhuoneessa sähköinen lattialämmitys.
Lämmönjakotapa: ilmalämpöpumppu, sähköinen lattialämmitys, muu
Poistoilmalämpöpumpun tekniikka uusittu v. 2009-2010 aikana, ilmalämpöpumppu uusittu v. 2017. Pesuhuoneessa sähköinen lattialämmitys.
Kunnan vesijohto
Kunnan
Koneellinen poisto, koneellinen tulo, lämmönttalteenotto
Mahdollisuus liittyvä valokuituverkkoon.
Asunnon tilat ja materiaalit
Pääasiallinen rakennusmateriaali: Puu
Varusteet: jääkaappipakastin, liesituuletin hormilla, keraaminen liesi, astianpesukone
Seinien pintamateriaali: lasikuitutapetti
Lattian pintamateriaali: korkki
Seinien pintamateriaali: lasikuitutapetti
Lattian pintamateriaali: korkki
Seinien pintamateriaali: maalattu, tapetti
Lattian pintamateriaali: korkki
Lattian pintamateriaali: korkki
Makuuhuoneiden seinämateriaalit: tapetti, lasikuitutapetti
Seinien pintamateriaali: tapetti, lasikuitutapetti
Lattian pintamateriaali: korkki
Makuuhuoneiden määrä: 4
Seinien pintamateriaali: tapetti, lasikuitutapetti
Lattian pintamateriaali: korkki
Makuuhuoneiden määrä: 4
Erillinen WC ja WC-istuin myös kodinhoito-/kylpyhuoneessa.
Seinien pintamateriaali: maalattu
Lattian pintamateriaali: muovi
Seinien pintamateriaali: maalattu
Lattian pintamateriaali: muovi
Kodinhoitotila kylpyhuoneen yhteydessä.
Katto: Aumakatto
Katon pintamateriaali: Peltikate
Katto uusittu v. 2020
Katon pintamateriaali: Peltikate
Katto uusittu v. 2020
Asunnon tontti
580-404-5-193
Satukulma
1 185 m²
Tasamaa
Oma
Oikeus vesialueisiin
Osuuksia yhteiseen vesialueeseen 580-876-3-0 Järvenpään osakaskunta.
Osuuksia yhteiseen vesialueeseen 580-876-3-0 Järvenpään osakaskunta.
Parikkalan kunta, rakennusvalvonta
Asemakaava
0,25
Vaja
Kyllä
Muut lisätiedot
Parikkalan taajaman palvelut n. 1,70 km, Kirjolan koulu ja Parikkalan lukio n. 2,10 km, päiväkoti Satakieli 1,50 km
Rautatieasema n. 800 metriä
Sähköliittymä, vesiliittymä, viemäriliittymä



























