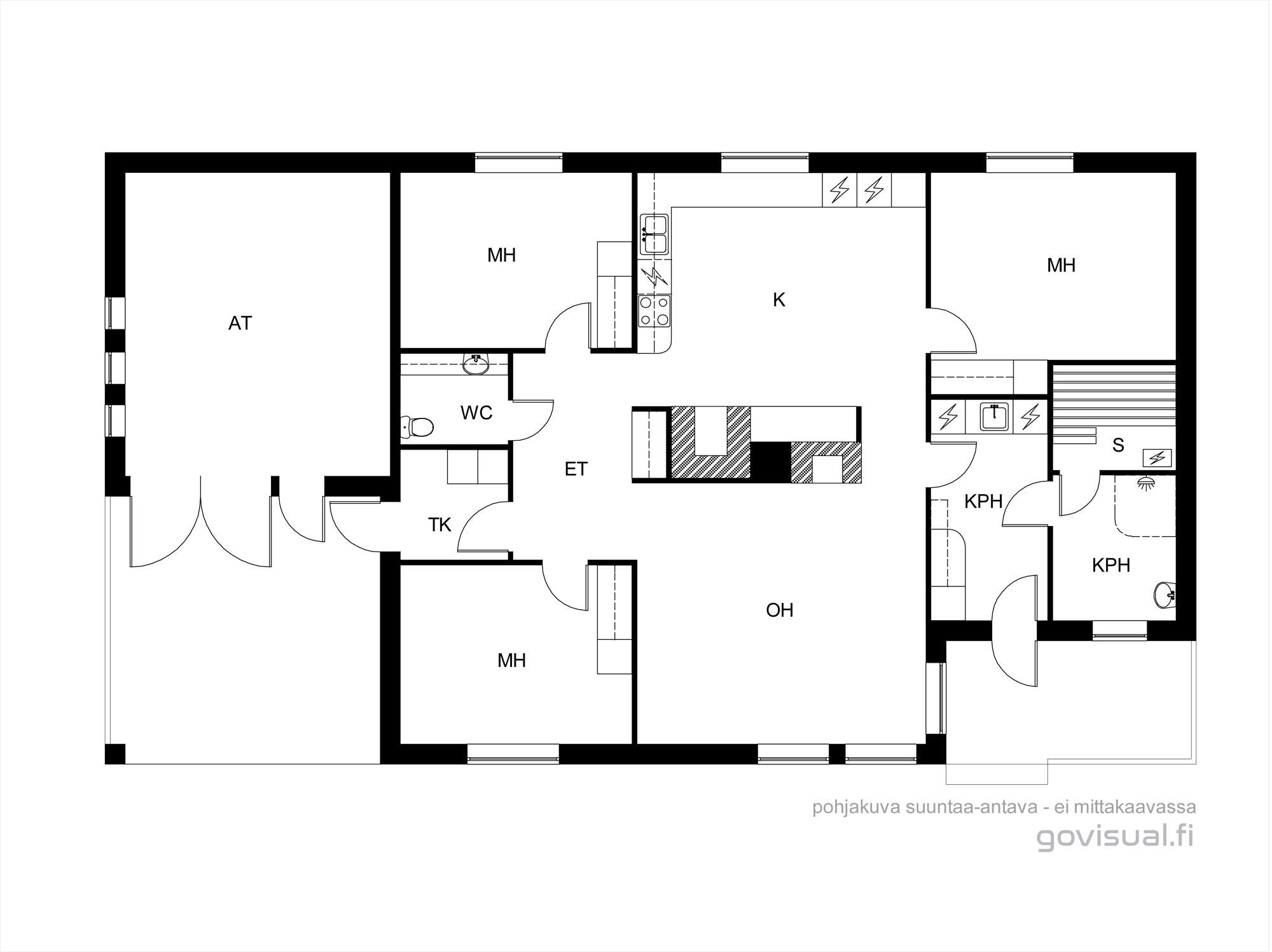
Omakotitalo, Siirtotie 34, Savonlinna, Punkaharju, k+oh+3mh+khh+kph+s+et+tk+wc+at+ak+terassi, 114,50 m², 82 000 €
V. 1985 valmistunut Jukkatalon puurakenteinen, tiiliverhottu omakotitalo toimivalla pohjaratkaisulla ja ihanteellisella sijainnilla lähellä Puruveden Sorvaslahden uimarantaa ja veneenpitopaikkoja! Tässä kodissa on mm. kolme makuuhuonetta, tilava keittiö ja olohuone, kodinhoitohuone, kylpyhuone, sauna ja wc sekä lasitettu terassi. Talon yhteydessä autokatos ja autotalli. Ilmalämpöpumppu, takka ja leivinuuni pitävät kodin lämmityskustannukset kohtuullisina. Kodin keittiö, kylpyhuone, sauna ja kodinhoitohuone sekä WC on remontoitu vuosien varrella, myös ikkunat ja ulko-ovi on uusittu. Kiinteistöllä on valokuituliittymä otettavissa käyttöön.
Vehreällä monimuotoisella puutarhatontilla kasvaa mm. omena- ja luumupuita, herukkapensaita ja perennoita. Tontilta löytyy laavu, hyvä maakellari sekä lautarakenteinen varastorakennus, jossa säilytystilaa puutarhavälineille ja polttopuille.
Tämä koti tarjoaa rauhallisen asumisympäristön esimerkiksi lapsiperheelle. Punkaharjun uuteen yhtenäiskouluun ja lähipalveluihin on kiinteistöltä matkaa alle kolme kilometriä! 
Kohdetta myy
58500 Punkaharjuinfo@metsat.fi+358 50 464 6504
Esittely
Perustiedot
Siirtotie 34
58500 Savonlinna
Hinta ja kustannukset
Laskettu velattomasta myyntihinnasta.
Lisätiedot
Lauteet lämpökäsiteltyä haapaa, seinäpaneeli tervaleppää.
Varusteet: sähkökiuas
Seinien pintamateriaali: puu
Lattian pintamateriaali: laatta
Olohuoneessa takka, keittiössä leivinuuni
* kylpyhuone, sauna ja kodinhoitohuone saneerattu v. 2007
* WC remontoitu v. 2008
* leivinuuni muurattu v. 2008
* terassi lasitettu v. 2008
* kylpyhuoneen, saunan ja kodinhoitohuoneen lattiat ja lattialämmitys uusittu v. 2013
* ikkunat (olohuoneessa turvalasit) ja ulko-ovi uusittu v. 2018
Lämmönjakotapa: sähköpatterilämmitys, sähköinen lattialämmitys, ilmalämpöpumppu
Sähköinen lattialämmitys kosteissa tiloissa. Ilmalämpöpumppu olohuoneessa.
Mahdollisuus liittyä valokuituverkkoon.
Asunnon tilat ja materiaalit
Puurunkoinen, tiiliverhous
Seinien pintamateriaali: maalattu
Lattian pintamateriaali: parketti
Alkuperäinen
Lattian pintamateriaali: parketti
Lattian pintamateriaali: muovi
Makuuhuoneiden määrä: 3
Seinien pintamateriaali: kaakeli
Lattian pintamateriaali: laatta
Varusteet: bidee
Seinien pintamateriaali: maalattu
Lattian pintamateriaali: laatta
Varusteet: pesukoneliitäntä, lattialämmitys, uloskäynti
Seinien pintamateriaali: maalattu
Lattian pintamateriaali: laatta
Katon pintamateriaali: Peltikate
Alkuperäinen (peltikatteesta harjattu pinnoite pois)
Asunnon tontti
Vehreä puutarhatontti, mm. marja- ja tyrnipensaita, omena- ja luumupuita, angervopensaita, neilikkaruusuja, kanukkapensaita, perennoja ja kookkaita pihapuita.
Savonlinnan kaupunki, kaavoituspalvelut
Vaja
Muut rakennukset
Muut lisätiedot
Punkaharjun koulu 2,80 km (luokat 1-9)
Punkaharjun päiväkoti 2,40 km
Savonlinnan kaupungin palvelut n. 35 km, Parikkalan taajaman palvelut n. 26 km
































